In de procesinleiding en in de bestreden uitspraak is de naam van [verweerder 2] weergegeven als ‘ [naam] ’. Dit is kennelijk een verschrijving, gelet op het uittreksel uit de Basisadministratie Persoonsgegevens van Curaçao, door [verweerders] en [eiseres 4] overgelegd als productie 1 bij de Incidentele conclusie houdende verzoek tot tussenkomst en voeging ex art. 214 Rv van 1 februari 2021.
HR, 06-12-2024, nr. 23/04494
ECLI:NL:HR:2024:1800
- Instantie
Hoge Raad
- Datum
06-12-2024
- Zaaknummer
23/04494
- Vakgebied(en)
Civiel recht algemeen (V)
Verbintenissenrecht (V)
Burgerlijk procesrecht (V)
- Brondocumenten en formele relaties
ECLI:NL:HR:2024:1800, Uitspraak, Hoge Raad, 06‑12‑2024; (Cassatie)
Conclusie: ECLI:NL:PHR:2024:1041
ECLI:NL:PHR:2024:1041, Conclusie, Hoge Raad (Parket), 11‑10‑2024
Arrest Hoge Raad: ECLI:NL:HR:2024:1800
- Vindplaatsen
Uitspraak 06‑12‑2024
Inhoudsindicatie
Caribische zaak. Verbintenissenrecht. Procesrecht. Vrijwaringsprocedure. Beroep van waarborg op schadebeperkingsplicht van gewaarborgde (art. 6:101 BW). Motiveringsklacht over beslissing ten aanzien van omvang van toegewezen advocaatkosten.
Partij(en)
HOGE RAAD DER NEDERLANDEN
CIVIELE KAMER
Nummer 23/04494
Datum 6 december 2024
ARREST
In de zaak van
[verzoeker],
wonende in [woonplaats],
VERZOEKER tot cassatie,
hierna: [verzoeker],
advocaat: B.M.H. Fleuren,
tegen
1. STICHTING PARTICULIER FONDS AVANTI,
gevestigd in Curaçao,
2. [verweerder 2],
wonende in [woonplaats],
3. [verweerder 3],
wonende in [woonplaats],
4. [verweerster 4] N.V.,
gevestigd in [vestigingsplaats],
VERWEERDERS in cassatie,
hierna gezamenlijk: Avanti c.s.,
advocaten: D.M. de Knijff en M.S. van der Keur.
1. Procesverloop
Voor het verloop van het geding in feitelijke instanties verwijst de Hoge Raad naar:
a. de vonnissen in de zaak CUR2017I00005 van het gerecht in eerste aanleg van Curaçao van 31 mei 2021 en 13 september 2021;
b. het vonnis in de zaak CUR2017I00005 - CUR2021H00324 van het Gemeenschappelijk Hof van Justitie van Aruba, Curaçao, Sint Maarten en van Bonaire, Sint Eustatius en Saba van 29 augustus 2023.
[verzoeker] heeft tegen het vonnis van het hof beroep in cassatie ingesteld.
Avanti c.s. hebben een verweerschrift tot verwerping ingediend.
De zaak is voor Avanti c.s. toegelicht door hun advocaten.
De conclusie van de Advocaat-Generaal T. Hartlief strekt tot vernietiging en tot afdoening op de wijze als in randnummer 3.59 in de conclusie vermeld.
De advocaat van [verzoeker] heeft schriftelijk op die conclusie gereageerd.
2. Beoordeling van het middel
2.1
Wat betreft de feiten en het verloop van de procedure verwijst de Hoge Raad naar de conclusie van de Advocaat-Generaal onder 1.2-1.6 respectievelijk 2.1-2.19.
2.2
De klachten van onderdeel 1 van het middel kunnen niet tot cassatie leiden. De Hoge Raad hoeft niet te motiveren waarom hij tot dit oordeel is gekomen. Bij de beoordeling van deze klachten is het namelijk niet nodig om antwoord te geven op vragen die van belang zijn voor de eenheid of de ontwikkeling van het recht (zie art. 81 lid 1 RO).
2.3.1
De klacht van onderdeel 2 slaagt op de gronden vermeld in de conclusie van de Advocaat-Generaal onder 3.56-3.58.
2.3.2
De Hoge Raad kan zelf de zaak afdoen door te beslissen als hierna vermeld.
3. Beslissing
De Hoge Raad:
- vernietigt het vonnis van het Gemeenschappelijk Hof van Justitie van 29 augustus 2023 voor zover in het dictum, derde gedachtestreepje, het bestreden vonnis voor het overige is bevestigd;
- vernietigt het vonnis van het gerecht in eerste aanleg van Curaçao van 13 september 2021 voor zover onder 5.4 van het dictum [verzoeker] is veroordeeld tot betaling aan Avanti van NAf 43.032,18, vermeerderd met de wettelijke rente vanaf 1 juli 2020 tot aan de dag der algehele voldoening;
- veroordeelt [verzoeker] tot betaling aan Avanti van NAf 42.032,18, vermeerderd met de wettelijke rente vanaf 1 juli 2020 tot aan de dag der algehele voldoening;
- bekrachtigt het vonnis van het gerecht in eerste aanleg van Curaçao van 13 september 2021 – met inbegrip van het dictum onder 5.2 zoals dat is komen te luiden door het vonnis van het Gemeenschappelijk Hof van Justitie van 29 augustus 2023 – voor het overige;
- veroordeelt Avanti c.s. in de kosten van het geding in cassatie, tot op deze uitspraak aan de zijde van [verzoeker] begroot op € 355,-- aan verschotten en € 2.600,-- voor salaris, vermeerderd met de wettelijke rente over deze kosten indien Avanti c.s. deze niet binnen veertien dagen na heden hebben voldaan.
Dit arrest is gewezen door de president G. de Groot als voorzitter, de vicepresident M.V. Polak en de raadsheren C.E. du Perron, S.J. Schaafsma en F.R. Salomons, en in het openbaar uitgesproken door de raadsheer A.E.B. ter Heide op 6 december 2024.
Conclusie 11‑10‑2024
Inhoudsindicatie
Caribische zaak. Vrijwaringsprocedure. In hoofdzaak, die betrekking heeft op overbouw, is verkrijger na bedrijfsovername veroordeeld tot medewerking aan levering aan hem van bebouwde perceel en tot betaling van koopsom en gebruiksvergoeding. Verkrijger spreekt verkoper aan op grond van akte tot vrijwaring. In vrijwaring aangesprokene doet beroep op schending schadebeperkingsplicht van verkrijger (art. 6:101 BWC). Is art. 6:101 BWC van toepassing op vergoedingsplicht uit vrijwaringsovereenkomst in kader van bedrijfsovername?
Partij(en)
PROCUREUR-GENERAAL
BIJ DE
HOGE RAAD DER NEDERLANDEN
Nummer 23/04494
Zitting 11 oktober 2024
CONCLUSIE
T. Hartlief
In de zaak
[eiser] (hierna: ‘ [eiser] ’)
tegen
1. Stichting Particulier Fonds Avanti (hierna: ‘Avanti’)
2. [verweerder 2] (hierna: ‘ [verweerder 2] ’)1.
3. [verweerder 3] (hierna: ‘ [verweerder 3] ’)
4. [eiseres 4] N.V. (hierna: ‘ [eiseres 4] ’)
( [verweerder 2] en [verweerder 3] hierna gezamenlijk ook: ‘ [verweerders] ’ en alle verweerders gezamenlijk: ‘Avanti c.s.’)
Deze Curaçaose zaak is een vrijwaringsprocedure. In de hoofdzaak, die ging over overbouw, is Avanti veroordeeld tot medewerking aan levering aan haar van het bebouwde perceel en tot betaling van een koopsom en een gebruiksvergoeding. Avanti heeft [eiser] in vrijwaring opgeroepen op grond van een door [eiser] opgemaakte akte tot vrijwaring. Zowel het Gerecht in Eerste Aanleg van Curaçao (hierna: ‘het gerecht’) als het Gemeenschappelijk Hof van Justitie van Aruba, Curaçao, Sint Maarten en van Bonaire, Sint Eustatius en Saba (hierna: ‘het hof’) heeft in de vrijwaringsprocedure de vorderingen van Avanti toegewezen.
[eiser] stelt in zijn cassatieberoep dat het hof zijn beroep op de uit art. 6:101 Burgerlijk Wetboek van Curaçao (hierna: ‘BWC’) voortvloeiende schadebeperkingsplicht, waaraan Avanti volgens hem niet heeft voldaan, ten onrechte heeft verworpen. Daarnaast stelt [eiser] in cassatie de hoogte van de toegewezen vergoeding van daadwerkelijk door Avanti gemaakte advocatenkosten aan de orde.
1. Feiten
1.1
In cassatie kan van de volgende feiten worden uitgegaan.2.
1.2
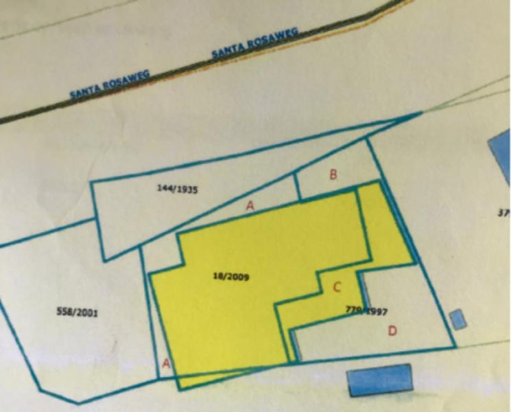
In 2003 heeft Marchena Hardware N.V. aan Seru Hulanda Real Estate N.V. (hierna: ‘Seru Hulanda’) in eigendom overgedragen (onder meer) het perceel grond van 125 m2 gelegen aan de Santa Rosaweg, meetbriefnummer 144/1935 (hierna: ‘de driehoek’).3.

1.3
Avanti is sinds 2006 erfpachthoudster respectievelijk eigenares van drie aan de driehoek grenzende percelen.
1.4
In 2006 heeft Avanti verbouwingswerkzaamheden aan het op haar percelen gevestigde restaurant uitgevoerd, waarbij zonder toestemming van Seru Hulanda een deel van de driehoek is bebouwd.
1.5
Naar aanleiding van de overbouw is tussen Seru Hulanda en [eiser] – die destijds de zeggenschapsrechten4.in Avanti had – een geschil ontstaan.
1.6
In 2009 heeft [eiser] Avanti overgedaan aan [verweerder 2] . In dat kader heeft [eiser] ten gunste van [verweerder 2]5.en Avanti een akte tot vrijwaring6.(hierna: ‘de akte tot vrijwaring’) opgemaakt, waarin onder meer het volgende is bepaald:
“ [eiser] wenst hierbij zekerheid te stellen en zich sterk te maken voor het voldoen van een eventuele vordering die Sehures [Seru Hulanda, A-G] op Avanti mocht blijken te hebben, welke vordering door Sehures (voorlopig) is vastgesteld op ANG 50.000,00. In dat verband verklaart [eiser] uitdrukkelijk Avanti en [verweerder 2] volledig te vrijwaren voor iedere vordering, tot welk bedrag dan ook, welke Sehures te eniger tijd met betrekking tot het grensoverschrijdende gedeelte (…) [op de driehoek, A-G] op Avanti mocht blijken te hebben, en alle eventueel door Avanti of [verweerder 2] te maken kosten in verband met door Sehures tegen een van hen of beiden te entameren incasso- of rechtsmaatregelen op zich te nemen.”
2. Procesverloop
Eerste aanleg
In de hoofdzaak
2.1
In 2016 heeft Seru Hulanda Avanti in rechte betrokken in verband met de in randnummer 1.4 hiervoor genoemde grensoverschrijdende bebouwing op een deel van de driehoek.7.[eiser] is in deze procedure als gevoegde partij aan de zijde van Avanti opgetreden.8.In verband met deze procedure is [eiser] door Avanti in vrijwaring opgeroepen.9.
2.2
Bij uitvoerbaar bij voorraad verklaard eindvonnis van 30 maart 202010.(hierna: ‘het eindvonnis in de hoofdzaak’) heeft het gerecht – voor zover in cassatie van belang – Avanti veroordeeld tot medewerking aan levering van de driehoek aan haar tegen betaling aan Seru Hulanda van een koopsom en een gebruiksvergoeding.
2.3
Avanti heeft – zo staat in cassatie vast11.– aan het eindvonnis in de hoofdzaak voldaan door de uit hoofde van dat vonnis verschuldigde bedragen inclusief rente, kosten en nakosten aan Seru Hulanda te betalen. In totaal heeft zij een bedrag van NAf 112.655,74 betaald, verdeeld in drie termijnen van respectievelijk NAf 100.000 op 25 mei 2020, NAf 5.000 op 4 juni 2020 en NAf 7.655,74 op 22 juni 2020. Avanti heeft daarvoor op 25 mei 2020 NAf 100.000 geleend van Katsu N.V. tegen een rentepercentage van 6,75% samengesteld per jaar. De notaris- en overdrachtskosten in verband met de overdracht van het perceel bedragen NAf 4.278,62.
2.4
In de hoofdzaak is geen hoger beroep ingesteld.
In de vrijwaringsprocedure
2.5
Bij vonnis van 31 mei 202112.heeft het gerecht [verweerders] en [eiseres 4] toegelaten als gevoegde partijen in het vrijwaringsgeding aan de zijde van Avanti.
2.6
Het gerecht heeft bij uitvoerbaar bij voorraad verklaard vonnis van 13 september 202113.[eiseres 4] niet-ontvankelijk verklaard en daarnaast [eiser] veroordeeld:
- tot betaling aan Avanti van NAf 122.655,74,14.vermeerderd met de wettelijke rente over NAf 100.000 vanaf 25 mei 2020 en de wettelijke rente over NAf 12.655,74 vanaf 22 juni 2020, tot aan de dag der algehele voldoening;
- tot betaling aan Avanti van NAf 4.278,62, vermeerderd met de wettelijke rente vanaf 17 augustus 2020 tot aan de dag der algehele voldoening;
- tot betaling aan Avanti van NAf 43.032,18, vermeerderd met de wettelijke rente vanaf 1 juli 2020 tot aan de dag der algehele voldoening.15.
2.7
Het gerecht is in zijn vonnis onder meer ingegaan op het beroep door [eiser] op vernietiging van de akte tot vrijwaring door zijn echtgenote op de voet van art. 1:89 BWC vanwege het ontbreken van haar toestemming als bedoeld in art. 1:88 BWC. Dat beroep heeft het gerecht verworpen, zodat Avanti een beroep op de akte tot vrijwaring kan doen (rov. 4.6.).
2.8
Daarna heeft het gerecht door uitleg de reikwijdte van de akte tot vrijwaring bepaald, en in dat kader – voor zover in cassatie van belang – overwogen en geoordeeld:
“4.8. De vrijwaring betreft volgens de akte iedere vordering die Seru Hulanda met betrekking tot het grensoverschrijdende perceel16.mocht blijken te hebben en alle door Avanti of [verweerder 2] in dat verband te maken kosten. Behoudens hetgeen hierna wordt overwogen ten aanzien van de declaraties van [advocatenkantoor 1] , moet worden vastgesteld dat de bedragen die Avanti in deze procedure van [eiser] vordert rechtstreeks verband houden met de vordering van Seru Hulanda uit hoofde van de grensoverschrijding.
(…)
4.10.
Voorts volgt uit de akte van vrijwaring dat partijen hebben afgesproken dat [eiser] Avanti ook zal vrijwaren voor alle door Avanti te maken kosten voor juridische bijstand in verband met de vordering van Seru Hulanda. Op grond van deze afspraak dient [eiser] de werkelijk gemaakte kosten aan Avanti te vergoeden. De gevorderde bedragen ter zake de declaraties van [advocatenkantoor 1] zien kennelijk op werkzaamheden die zijn verricht in het kader van een mogelijke verkoop aan [A] .17.Nu [eiser] de bedragen en de relevantie van die werkzaamheden betwist en de werkzaamheden en daaraan bestede tijd niet zijn gespecificeerd door Avanti, zal dat deel van de vordering als onvoldoende onderbouwd worden afgewezen. Wat betreft de facturen van het kantoor van de huidige gemachtigden van Avanti had het gelet op de gestelde substantiële werkzaamheden op de weg van [eiser] gelegen deze gemotiveerd te betwisten. Dit heeft hij niet gedaan. Zo heeft hij bijvoorbeeld niet gesteld dat de advocaatkosten die hijzelf als gevoegde partij in diezelfde procedure heeft moeten maken aanzienlijk lager waren.”
2.9
Vervolgens heeft het gerecht – voor zover in cassatie van belang – [eiser] beroep op eigen schuld van Avanti, bestaande in schending van haar schadebeperkingsplicht, besproken. Het gerecht heeft niet met zoveel woorden overwogen of geoordeeld dat deze figuur al dan niet aan de orde is, maar heeft de door [eiser] gewenste consequenties afgewezen zonder zelf in termen van (schending van) de schadebeperkingsplicht te spreken:
“4.12. [eiser] stelt nog dat de schade niet op hem verhaalbaar is, omdat het feit dat Avanti schadeplichtig is geworden jegens Seru Hulanda is te wijten aan eigen schuld, dan wel omdat de schade in redelijkheid voor rekening van Avanti dient te blijven. Daartoe heeft hij gesteld dat Avanti in de hoofdzaak slecht verweer heeft gevoerd en ook heeft nagelaten om hoger beroep in te stellen, waarmee zij niet heeft voldaan aan haar schadebeperkingsplicht. Reeds omdat [eiser] in de hoofdzaak gevoegde partij aan de zijde van Avanti was en zelfstandig verweer heeft gevoerd, kan hij de schade niet toeschrijven aan gebrekkig verweer. Ook het verweer van [eiser] in de hoofdzaak heeft immers geen standgehouden. Voorts is [eiser] zelf evenmin in hoger beroep gekomen van het vonnis. De schade voor Avanti als gevolg van het vonnis in de hoofdzaak is daarmee een gegeven en werkt in volle omvang door in de vrijwaring.”
Hoger beroep
2.10
[eiser] heeft tegen het vonnis in de vrijwaringsprocedure van 13 september 2021 hoger beroep ingesteld. Hij heeft een memorie van grieven genomen en geconcludeerd tot vernietiging van het vonnis en het alsnog afwijzen van de vorderingen van Avanti en tot veroordeling van Avanti tot terugbetaling van alle bedragen die door [eiser] op basis van het vonnis aan Avanti mochten zijn voldaan.
2.11
Avanti en [verweerders] hebben bij memorie van grieven verweer gevoerd en hebben – voor zover in cassatie van belang – geconcludeerd tot niet-ontvankelijkverklaring van [eiser] in zijn hoger beroep, althans tot verwerping van zijn hoger beroep.
2.12
Avanti en [verweerders] hebben tevens incidenteel hoger beroep ingesteld. Het incidentele hoger beroep is in cassatie niet meer van belang.
2.13
Op 28 juni 2022 hebben partijen pleitaantekeningen ingediend.18.
2.14
Bij vonnis van 29 augustus 202319.(hierna: ‘het bestreden vonnis’) heeft het hof het vonnis waarvan beroep voor zover in cassatie van belang bekrachtigd. Daarbij heeft het hof [eiser] in de kosten van het hoger beroep veroordeeld.
2.15
Het hof heeft daartoe – voor zover in cassatie van belang – geoordeeld dat het principale hoger beroep faalt. Het hof heeft daarbij eerst de algemene grief van [eiser] besproken. Deze algemene grief had vooral de strekking dat het vonnis in de hoofdzaak berustte op een juridische misslag. Aan het slot van de algemene grief heeft [eiser] erop gewezen dat Avanti geen hoger beroep heeft ingesteld tegen het vonnis in de hoofdzaak, terwijl een hoger beroep volgens [eiser] wel kansrijk zou zijn geweest. Dit aspect moet volgens [eiser] (memorie van grieven, randnummer 1.24.) een rol spelen bij de vraag of Avanti heeft voldaan aan haar schadebeperkingsplicht en daarmee bij de vraag in hoeverre zij op basis van art. 6:101 BWC in verhouding tot [eiser] de schade zelf moet dragen. Het hof heeft op dit betoog als volgt gerespondeerd:
“2.4. [eiser] heeft aangevoerd dat het Gerecht in het tussenvonnis van 23 september 2019 (ECLI:NL:OGEAC:2019:375) rov. 5.6 de werking van verjaring heeft miskend (MvG onder 1.18-1.20). Deze overweging is gegeven in de hoofdzaak tussen Seru Hulanda als eiseres en Avanti als gedaagde. In deze vrijwaringszaak is de toewijsbaarheid van de vorderingen in de hoofdzaak niet aan de orde en dient slechts te worden beoordeeld of Avanti de nadelige gevolgen van verlies van de hoofdzaak kan afwentelen op [eiser] .
2.5.
[eiser] heeft aangevoerd dat Avanti die nadelige gevolgen niet, althans niet geheel, kan afwentelen op [eiser] , omdat Avanti heeft verzuimd hoger beroep in te stellen tegen de vonnissen in de hoofdzaak. Dit betoog faalt. In de hoofdzaak was [eiser] gevoegde partij aan de zijde van Avanti. Hij had desgewenst zelf hoger beroep kunnen instellen. Daarom kan [eiser] redelijkerwijs niet aan Avanti tegenwerpen dat deze geen hoger beroep heeft ingesteld.”
2.16
Vervolgens heeft het hof overwogen dat het het belang van de genummerde grieven 1-3 niet ziet en geoordeeld dat deze grieven daarom falen (rov. 2.6.). De grieven 1 en 2 hadden betrekking op de door het gerecht vastgestelde feiten. Grief 3 hield in dat het gerecht ten onrechte niet alle verweren van [eiser] juist of volledig had weergegeven.
2.17
In rov. 2.7.-2.18. heeft het hof grief 4 verworpen. Grief 4 was gericht tegen de verwerping door het gerecht van [eiser] beroep op vernietiging van de vrijwaring op de voet van art. 1:88 lid 1 sub c BWC (vernietiging vanwege ontbrekende toestemming van de niet-handelende echtgenoot). De verwerping van grief 4 is in cassatie niet meer van belang.
2.18
In rov. 2.19. heeft het hof grief 5 verworpen. Grief 5 had de strekking dat het gerecht, voor zover de door [eiser] verleende vrijwaring jegens Avanti is aan te merken als conformiteitsgarantie in de tussen [eiser] en [verweerder 2] gesloten koopovereenkomst met betrekking tot de zeggenschapsrechten (zie randnummer 1.6 hiervoor), er ten onrechte aan is voorbijgegaan dat Avanti in verband met art. 7:23 BWC binnen bekwame tijd had moeten klagen. Het hof heeft als volgt overwogen en geoordeeld:
“2.19. Ook grief 5 faalt. De vrijwaringsovereenkomst is een van de koop te onderscheiden afzonderlijke overeenkomst. Het Gerecht heeft slechts gerefereerd aan de conformiteitsgarantie uit hoofde van artikel 7:17 BW (onder 4.6 van het vonnis van 13 september 2021). Artikel 7:23 BW kan wellicht van belang zijn voor de vraag of [verweerders]20.als kopers nog jegens [eiser] als verkoper een beroep kunnen doen op de akte tot vrijwaring, opgevat als conformiteitsgarantie. In dit vrijwaringsgeding is die vraag echter niet aan de orde (…) want hier gaat het nog slechts om de vraag of Avanti de nadelige gevolgen van verlies van de hoofdzaak kan afwentelen op [eiser] .”
2.19
Ten slotte heeft het hof in rov. 2.20. de grieven 6-9 verworpen. Deze grieven hebben achtereenvolgens betrekking op de uitleg van de akte tot vrijwaring (grief 6), de door Avanti geleden schade (grief 7), [eiser] beroep op eigen schuld, dat volgens [eiser] ten onrechte door het gerecht is afgewezen (grief 8), en ongerechtvaardigde verrijking van Avanti ten koste van [eiser] (grief 9). Het hof heeft daarover het volgende overwogen en geoordeeld:
“2.20. De grieven 6-9 falen. Wat betreft grief 6: het Hof verenigt zich [met de, A-G] wijze waarop het Gerecht door middel van uitleg de reikwijdte van de akte tot vrijwaring heeft vastgesteld. Grief 6 stelt verder bezwaren tegen beslissingen van de rechter in de hoofdzaak aan de orde, die echter niet van belang zijn voor de in deze vrijwaringsprocedure aan de orde zijnde vraag of [eiser] de nadelige gevolgen van de veroordeling in de hoofdzaak dient te dragen. Grief 7 gaat helemaal over de hoofdzaak, dus daarvoor geldt hetzelfde. Grief 8 is hiervoor onder 2.4-2.5 besproken. Wat betreft grief 9, de akte tot vrijwaring rechtvaardigt de eventuele verrijking van Avanti en verarming van [eiser] .”
Cassatieberoep
2.20
[eiser] heeft op 20 november 2023 – tijdig – cassatieberoep ingesteld. Avanti c.s. hebben verweer gevoerd met conclusie tot verwerping van het cassatieberoep. Zij hebben hun standpunt schriftelijk toegelicht.
3. Bespreking van het cassatiemiddel
3.1
Het cassatiemiddel bestaat uit twee onderdelen. In onderdeel 1 bestrijdt het middel de verwerping door het hof van grief 8. Grief 8 omvatte – samengevat – een beroep op niet voldoen door Avanti aan de schadebeperkingsplicht die voortvloeit uit art. 6:101 BWC. Onderdeel 2 is gericht tegen de verwerping door het hof van [eiser] grief 6. Deze grief bevatte – voor zover in cassatie relevant – het verweer dat Seru Hulanda in een tussenvonnis21.in de hoofdzaak jegens Avanti is veroordeeld in de proceskosten à raison van NAf 1.000 en Avanti dit bedrag niet kenbaar heeft verdisconteerd in de door haar in de vrijwaringszaak gevorderde vergoeding van de werkelijk gemaakte kosten.
Onderdeel 1
3.2
Onderdeel 1 is gericht tegen de verwerping van [eiser] grief 8 in rov. 2.20. in verband met rov. 2.4.-2.5. van het bestreden vonnis. In de bestreden rov. 2.20. (hiervoor in randnummer 2.19 geciteerd) heeft het hof (voor zover voor de bespreking van dit onderdeel relevant) geoordeeld dat de grieven 6-9 falen en overwogen dat grief 8 in rov. 2.4.-2.5. is besproken. Onderdeel 1 valt uiteen in twee subonderdelen, die verschillende klachten bevatten.
3.3
Voordat ik de klachten van dit onderdeel bespreek, maak ik eerst een enkele opmerking over de betekenis die toekomt aan ‘vrijwaring’ en de verhouding tot ‘garantie’ in het algemeen en over de vraag welke figuur in de onderhavige zaak aan de orde is. Ik ga daarbij kort in op het belang van het antwoord op die vraag voor de uit art. 6:101 BWC voortvloeiende schadebeperkingsplicht.
3.4
Tussen partijen is sprake van een ‘akte tot vrijwaring’ (zie randnummer 1.6 hiervoor), waarmee kennelijk wordt gedoeld op een overeenkomst die inhoudt dat [eiser] [verweerder 2] en Avanti zal vrijwaren.
3.5
Vrijwaring is geen term met een vastomlijnde, algemeen geaccepteerde juridische betekenis.22.Wat een overeenkomst van vrijwaring in een concreet geval inhoudt, is daarom steeds een kwestie van uitleg van de overeenkomst.
3.6
Toch is er in de literatuur een tendens waar te nemen tot een bepaald gebruik van de term ‘vrijwaring’.23.Het begrip wordt in deze literatuur vaak afgezet tegen het (evenmin eenvormig gedefinieerde) begrip ‘garantie’. De term vrijwaring ziet in deze literatuur, die overigens vooral betrekking heeft op bedrijfsovernames, doorgaans op een instrument dat het risico dat een bepaalde, voorzienbare gebeurtenis plaatsheeft verlegt.24.In het algemeen betekent dit dat de vrijwaarder belooft de voor de gevrijwaarde nadelige gevolgen van een bepaald voorval voor zijn rekening te nemen.
3.7
Als een vrijwaringsovereenkomst in een concreet geval inderdaad op deze, zojuist besproken, wijze moet worden uitgelegd, brengt dit in de regel mee dat de gevrijwaarde partij nakoming kan vorderen van een uit de vrijwaringsovereenkomst voortvloeiende verbintenis.25.Dit is dan een wezenlijk verschil met wat dikwijls als ‘garantie’ wordt aangeduid. Een schuldeiser beroept zich in dat verband juist op schending van een verbintenis (garantie) en vordert in verband daarmee schadevergoeding op grond van een toerekenbare tekortkoming in de nakoming (art. 6:74 BW).26.
3.8
Het voorgaande komt op het volgende neer: als een overeenkomst moet worden uitgelegd als garantie in de zojuist bedoelde zin, is de garant gehouden tot schadevergoeding op grond van art. 6:74 BW. Hij is dan aansprakelijk voor in de overeenkomst bepaalde schade op grond van een toerekenbare tekortkoming in de nakoming. Als een overeenkomst daarentegen moet worden uitgelegd als een vrijwaring in de zin die de zojuist bedoelde literatuur daaraan geeft, spreekt de schuldeiser de schuldenaar aan tot nakoming van een uit de overeenkomst voortvloeiende verplichting. In beide gevallen zet de schuldenaar (vrijwaarder, garant) zijn eigen verplichtingen kracht bij, zij het, al naar gelang de gekozen ‘contracttechniek,’27.op verschillende manieren.
3.9
Deze kwalificatie van de vordering (tot schadevergoeding of juist tot nakoming) is voor de onderhavige zaak van belang, omdat een beroep is gedaan op art. 6:101 BWC.
3.10
Art. 6:101 lid 1 BWC stemt geheel overeen met het Nederlandse art. 6:101 lid 1 BW. Het luidt als volgt:
Wanneer de schade mede een gevolg is van een omstandigheid die aan de benadeelde kan worden toegerekend, wordt de vergoedingsplicht verminderd door de schade over de benadeelde en de vergoedingsplichtige te verdelen in evenredigheid met de mate waarin de aan ieder toe te rekenen omstandigheden tot de schade hebben bijgedragen, met dien verstande dat een andere verdeling plaatsvindt of de vergoedingsplicht geheel vervalt of in stand blijft, indien de billijkheid dit wegens de uiteenlopende ernst van de gemaakte fouten of andere omstandigheden van het geval eist.
3.11
Afdeling 6.1.10 BWC (‘Wettelijke verplichtingen tot schadevergoeding’) is alleen rechtstreeks van toepassing op wettelijke verplichtingen tot schadevergoeding.28.Dit geldt dus ook voor art. 6:101 BWC.
3.12
Een schuldenaar die wordt aangesproken tot nakoming kan zich daarom niet verweren met een beroep op de uit art. 6:101 BWC voortvloeiende schadebeperkingsplicht.29.Dit geldt ook voor de schuldenaar die wordt aangesproken tot nakoming van een uit overeenkomst voortvloeiende verbintenis om de door zijn wederpartij ten gevolge van een bepaalde gebeurtenis geleden schade te vergoeden. Ook dit is een vordering tot nakoming, waarop art. 6:101 BWC (zoals gezegd) niet van toepassing is.
3.13
Dit laat onverlet dat deze tot nakoming aangesproken schuldenaar in bepaalde gevallen een verweer kan voeren met de materiële strekking dat zijn wederpartij onvoldoende heeft gedaan om de nadelige gevolgen van de in de overeenkomst genoemde gebeurtenis te beperken. Deze mogelijkheid bestaat bijvoorbeeld als uit de overeenkomst voortvloeit dat de wederpartij tot schadebeperkende maatregelen gehouden was of als de omstandigheden van het geval meebrengen dat het naar maatstaven van redelijkheid en billijkheid onaanvaardbaar is om de schuldenaar tot (volledige) nakoming te veroordelen.30.Deze verweren mogen materiële gelijkenissen vertonen met een beroep op de uit art. 6:101 BWC voortvloeiende schadebeperkingsplicht in geval van een wettelijke verplichting tot schadevergoeding, maar het juridische beoordelingskader is anders. Een beroep op art. 6:101 BWC kan een tot nakoming aangesproken schuldenaar daarom niet baten.
3.14
In het kader van het in deze zaak aan de orde gestelde beroep op art. 6:101 BWC is de uitleg van de vrijwaringsovereenkomst door het hof gelet op het voorgaande van doorslaggevend belang.
3.15
Daarbij is het belangrijk om eerst enige verwarring omtrent de partijen bij de verschillende rechtsverhoudingen uit de wereld te helpen. Volgens de feitenvaststelling (zie ook hiervoor, randnummer 1.6) en rov. 2.13. van het bestreden vonnis is [verweerder 2] koper van de oprichtersrechten in Avanti. Daarvan gaan ook partijen in cassatie uit.31.In rov. 2.19. lijkt het hof [verweerders] – dus [verweerder 2] én [verweerder 3] – als kopers te hebben aangemerkt. Ik neem aan dat in rov. 2.19. sprake is van een verschrijving. Wat de akte tot vrijwaring betreft, geldt iets vergelijkbaars. Volgens de feitenvaststelling is deze akte tot vrijwaring opgemaakt ten gunste van Avanti en [verweerder 2] . Een tegen deze vaststelling van het gerecht gerichte grief heeft het hof verworpen (rov. 2.6.). In rov. 2.15. echter lijkt het hof te overwegen dat niet [verweerder 2] maar [verweerder 3] is gevrijwaard. Alle partijen in cassatie nemen evenwel aan dat de vrijwaring niet strekt ten gunste van [verweerder 3] , maar ten gunste van [verweerder 2] .32.Ook hierin volg ik, evenals partijen, de feitenvaststelling door het hof.
3.16
Als ik het goed zie, speelt dezelfde akte tot vrijwaring in twee verschillende rechtsverhoudingen een rol, zij het dat die rol in deze twee verhoudingen niet dezelfde is. Onderscheid moet worden gemaakt tussen de uit koopovereenkomst voortvloeiende rechtsverhouding tussen [eiser] en [verweerder 2] enerzijds en de uit de vrijwaringsovereenkomst zelf voortvloeiende rechtsverhouding tussen [eiser] en Avanti anderzijds:
- in de koopverhouding is [eiser] als verkoper jegens koper [verweerder 2] op grond van een toerekenbare tekortkoming in de nakoming mogelijk gehouden tot schadevergoeding, als de verkochte oprichtersrechten niet voldoen aan de koopovereenkomst. De akte tot vrijwaring speelt in deze verhouding de rol van garantie in de hiervoor bedoelde zin – door het hof aangeduid als ‘conformiteitsgarantie’;33.
- in de vrijwaringsverhouding heeft [eiser] zich jegens Avanti verbonden om de voor Avanti nadelige gevolgen te dragen van een door Seru Hulanda tegen Avanti ingestelde vordering die verband hield met de grensoverschrijdende bebouwing. De akte tot vrijwaring speelt in deze verhouding de rol van vrijwaringsovereenkomst.
3.17
Verwarrende factor kan zijn dat het in beide verhoudingen uiteindelijk gaat om dezelfde gebeurtenis waarvan [eiser] in de akte tot vrijwaring – zij het dus in twee verschillende juridische constructies – het risico op zich heeft genomen: steeds gaat het om nadelige gevolgen van een door Seru Hulanda tegen Avanti ingestelde vordering. In zekere zin heeft [verweerder 2] daarmee twee routes om [eiser] aan te spreken: één in zijn (dat wil zeggen [verweerder 2] ) hoedanigheid van koper van de oprichtersrechten van Avanti, en één via Avanti, waarin [verweerder 2] sinds de overdracht van de oprichtersrechten de zeggenschap heeft.
3.18
Uit zijn bespreking van grief 5 (inhoudende een beroep op de klachtplicht van art. 7:23 BWC) in rov. 2.19. (in cassatie niet bestreden) blijkt dat het hof de hiervoor in randnummer 3.16 omschreven rechtsverhoudingen heeft onderscheiden. In het onderhavige geding gaat het volgens het hof slechts over de rechtsverhouding tussen [eiser] en Avanti:
“2.19. Ook grief 5 faalt. De vrijwaringsovereenkomst is een van de koop te onderscheiden afzonderlijke overeenkomst. Het Gerecht heeft slechts gerefereerd aan de conformiteitsgarantie uit hoofde van artikel 7:17 BW (onder 4.6 van het vonnis van 13 september 2021). Artikel 7:23 BW kan wellicht van belang zijn voor de vraag of [verweerders]34.als kopers nog jegens [eiser] als verkoper een beroep kunnen doen op de akte tot vrijwaring, opgevat als conformiteitsgarantie. In dit vrijwaringsgeding is die vraag echter niet aan de orde (…) want hier gaat het nog slechts om de vraag of Avanti de nadelige gevolgen van verlies van de hoofdzaak kan afwentelen op [eiser] .”
3.19
Hieruit blijkt dat het hof de rechtsverhouding tussen Avanti en [eiser] uitdrukkelijk niet heeft opgevat als garantie, maar daarentegen als vrijwaring in de hiervoor in randnummer 3.6 bedoelde zin. Hieruit vloeit voort dat de door het hof beoordeelde vordering strekte tot nakoming van een uit overeenkomst voortvloeiende verbintenis van [eiser] . Deze lezing van het bestreden vonnis brengt dus mee dat art. 6:101 BWC op de aan de orde gestelde rechtsverhouding tussen Avanti en [eiser] niet van toepassing is.
3.20
Tegen deze achtergrond kom ik toe aan de bespreking van de klachten.
3.21
Subonderdeel 1.1 klaagt (procesinleiding, randnummer 25.) dat het bestreden oordeel van het hof onjuist is omdat wordt miskend dat wanneer de schade mede een gevolg is van een omstandigheid die aan de benadeelde kan worden toegerekend, de vergoedingsplicht wordt verminderd door de schade op grond van art. 6:101 BWC over de benadeelde en de vergoedingsplichtige te verdelen in evenredigheid met de mate waarin de aan ieder toe te rekenen omstandigheden tot de schade hebben bijgedragen. Daarnaast is het oordeel (volgens hetzelfde randnummer) onvoldoende en/of onbegrijpelijk gemotiveerd. Als juist zou zijn dat de nadelige gevolgen van het vonnis in de hoofdzaak (in overwegende mate) het gevolg zijn van eigen handelen en nalaten van [eiser] , dan is dit volgens het subonderdeel nog niet redengevend om de schade die uit het nadelige vonnis voortvloeit volledig voor [eiser] rekening te laten. Waarom de billijkheidscorrectie in art. 6:101 BWC dit zou rechtvaardigen, is in het vonnis niet te lezen en is ook overigens niet in te zien, aldus het subonderdeel.
3.22
Het subonderdeel bestrijdt vervolgens (procesinleiding, randnummer 26.) het in de bestreden overwegingen gelezen oordeel dat aan een waarborg die zich in de hoofdzaak aan de zijde van de gewaarborgde heeft gevoegd in de vrijwaringsprocedure geen beroep toekomt op schending van de schadebeperkingsplicht als deze schending bestaat in het in de hoofdzaak voeren van niet behoorlijk verweer en/of het niet instellen van hoger beroep door de gewaarborgde. Voor zover dit oordeel in het bestreden vonnis te lezen is, is het volgens het subonderdeel rechtens onjuist, onbegrijpelijk of onvoldoende gemotiveerd omdat het hof daarmee de in het vorige randnummer weergegeven rechtsregel van art. 6:101 BWC heeft miskend. Om dezelfde reden is de verwerping van [eiser] betoog over de schadebeperkingsplicht volgens het middel onjuist althans onbegrijpelijk en/of ontoereikend gemotiveerd indien daarin besloten ligt dat een beroep op de schadebeperkingsplicht is uitgesloten als de waarborg zich in de hoofdzaak aan de zijde van de gewaarborgde partij heeft gevoegd en daarin zelf (ongehonoreerd) verweer heeft gevoerd en nagelaten heeft hoger beroep in te stellen. Daarnaast valt volgens het subonderdeel (procesinleiding, randnummer 27.) zonder nadere motivering niet in te zien waarom dit beroep in een dergelijk geval steeds zou zijn uitgesloten.
3.23
Volgens subonderdeel 1.2 is de verwerping van het betoog van [eiser] over schending van de in art. 6:101 BWC verankerde schadebeperkingsplicht door Avanti in rov. 2.20. in verband met rov. 2.4.-2.5. onvoldoende althans onbegrijpelijk gemotiveerd in het licht van door [eiser] in dit verband aangevoerde stellingen (opgesomd in procesinleiding, randnummer 28., a. tot en met f.).
3.24
Volgens het subonderdeel (procesinleiding, randnummers 29.-31.) houden de overwegingen in rov. 2.4.-2.5., waarnaar het hof in rov. 2.20. verwijst, geen voldoende en/of begrijpelijke motivering in voor de verwerping van [eiser] beroep op schending van de op art. 6:101 BWC gebaseerde schadebeperkingsplicht door Avanti. De overwegingen in rov. 2.4. hebben volgens het subonderdeel (procesinleiding, randnummer 30.) geen betrekking op grief 8, maar op de in de inleiding van de memorie van grieven vervatte algemene grief. Deze hield in dat het eindvonnis in de hoofdzaak een juridische misslag bevat, omdat het gerecht – kort gezegd – uit de feiten niet als voldoende vaststaand heeft aangenomen dat sprake was van verkrijgende verjaring en in het geheel niet heeft gerespondeerd op het beroep van Avanti en [eiser] op verkrijgende verjaring. Dit is volgens het subonderdeel evident een andere kwestie, waarvoor logischerwijs andere motiveringseisen gelden dan voor een verwerping van een beroep op art. 6:101 BWC, zodat alleen al daarom de overwegingen in rov. 2.4. de verwerping van grief 8 in rov. 2.20. niet kunnen dragen.
3.25
Het subonderdeel voert in de procesinleiding, randnummer 31. aan dat het oordeel in rov. 2.4. dat in de vrijwaringszaak de toewijsbaarheid van de vorderingen in de hoofdzaak niet aan de orde is geen voldoende en/of begrijpelijke motivering inhoudt voor de verwerping in rov. 2.20. van [eiser] beroep op schending van de schadebeperkingsplicht. Die omstandigheid sluit volgens [eiser] niet uit dat in de vrijwaringsprocedure is aan te voeren dat Avanti niet behoorlijk verweer heeft gevoerd ten aanzien van de vordering in de hoofdzaak en zo haar schadebeperkingsplicht heeft geschonden.
3.26
Het hof heeft volgens procesinleiding, randnummer 32., noch in rov. 2.4., noch in rov. 2.5. de in procesinleiding, randnummer 28. onder a., c., d. en e. genoemde stellingen (kenbaar) geadresseerd, maar is in rov. 2.5. slechts ingegaan op de stelling onder b. (de stellingen onder f. worden in dit randnummer van de procesinleiding niet genoemd). Volgens het subonderdeel heeft het hof verzuimd (voldoende) te reageren op de in het kader van grief 8 door [eiser] aangevoerde stellingen ter ondersteuning van zijn beroep op schending van de in art. 6:101 BWC verankerde schadebeperkingsplicht door Avanti, zodat het de verwerping van [eiser] op art. 6:101 BWC gebaseerde betoog – aldus nog steeds het subonderdeel – onvoldoende althans onbegrijpelijk heeft gemotiveerd.
3.27
Voor zover het hof heeft gemeend dat [eiser] de in procesinleiding, randnummer 28. hiervoor genoemde stellingen niet in het kader van de in rov. 2.20. verworpen grief 8 heeft aangevoerd, geeft dit oordeel mede in het licht van de in de procesinleiding genoemde vindplaatsen blijk van een onbegrijpelijke lezing van de processtukken in feitelijke instanties, zo klaagt procesinleiding, randnummer 33.
3.28
De subonderdelen 1.1 en 1.2 lenen zich voor gezamenlijke behandeling.
3.29
Alle in onderdeel 1 voorgestelde klachten nemen tot uitgangspunt dat het hof art. 6:101 BWC onjuist heeft toegepast. Zoals ik hiervoor heb uiteengezet, is in deze zaak de verhouding tussen [eiser] en Avanti aan de orde en is art. 6:101 BWC op deze verhouding niet van toepassing. Ik lees in het oordeel van het hof dan ook geen toepassing van art. 6:101 BWC. Het hof heeft in ieder geval niet geoordeeld dat de schade gedeeltelijk aan Avanti is te wijten en het maakt dan ook verder geen afweging zoals die normaal in het kader van art. 6:101 BWC aan de orde is. Het hof heeft in rov. 2.5., zonder daarbij in termen van 6:101 BWC of de daaruit voortvloeiende schadebeperkingsplicht te spreken, geoordeeld dat [eiser] redelijkerwijs niet aan Avanti kan tegenwerpen dat zij geen hoger beroep heeft ingesteld. Daarbij is het hof niet ingegaan op de context waarin dit aan de orde was.
3.30
De klachten hebben alle de strekking dat het hof wél toepassing heeft gegeven aan art. 6:101 BWC, maar dat deze toepassing onjuist dan wel onbegrijpelijk of onvoldoende gemotiveerd was. Nu art. 6:101 BWC niet van toepassing is op de (vordering tot) nakoming van een overeenkomst, kan toepassing van deze bepaling geen voor [eiser] gunstiger resultaat opleveren. Dit betekent dat al deze klachten falen bij gebrek aan belang.
3.31
Voor zover de klachten ertoe strekken dat het hof ten onrechte in het geheel geen toepassing heeft gegeven aan art. 6:101 BWC, falen zij, omdat art. 6:101 BWC zoals gezegd op de voorliggende rechtsverhouding niet van toepassing is.
3.32
Ik wijs erop dat het middel geen klachten bevat over een al dan niet uit de overeenkomst (eventueel in verband met art. 6:248 BWC) voortvloeiende schadebeperkingsplicht zoals bedoeld in randnummer 3.13 hiervoor.
3.33
Hoewel alle klachten van onderdeel 1 om de hiervoor uiteengezette redenen falen, merk ik nog het volgende op.
3.34
Nog afgezien van wat hiervoor is uiteengezet, falen de klachten vervat in procesinleiding, randnummers 26. en 27., bij gebrek aan feitelijke grondslag. Zij zijn gericht tegen het in de bestreden overwegingen gelezen oordeel dat aan een waarborg die zich in de hoofdzaak aan de zijde van de gewaarborgde heeft gevoegd in de vrijwaringsprocedure geen beroep toekomt op schending van de schadebeperkingsplicht als deze schending bestaat in het in de hoofdzaak voeren van niet behoorlijk verweer en/of het niet instellen van hoger beroep door de gewaarborgde. Een dergelijk algemeen oordeel is in de bestreden rechtsoverwegingen niet gegeven. Het hof heeft in rov. 2.5. overwogen dat [eiser] als gevoegde partij in de hoofdzaak desgewenst zelf hoger beroep had kunnen instellen en geoordeeld dat [eiser] daarom redelijkerwijs niet aan Avanti kan tegenwerpen dat zij geen hoger beroep heeft ingesteld. Het oordeel van het hof geeft daarmee geen blijk van de door [eiser] bestreden rechtsopvatting.
3.35
Zoals ik hiervoor heb betoogd, is art. 6:101 BWC niet van toepassing op de rechtsverhouding tussen [eiser] en Avanti. Voor het geval dat dit anders mocht zijn, maak ik enkele opmerkingen over de in subonderdeel 1.2 voorgestelde motiveringsklachten.
3.36
Van de in procesinleiding, randnummer 28., weergegeven stellingen hebben alleen de stellingen weergegeven onder a., b. en f. betrekking op volgens [eiser] aan Avanti toe te rekenen omstandigheden waarvan de door Avanti geleden schade volgens [eiser] mede het gevolg is. Dit zijn daarom de stellingen waarop het hof, als art. 6:101 BWC van toepassing zou zijn, zou hebben moeten responderen.
3.37
Op de stelling onder b. heeft het hof in rov. 2.5. uitdrukkelijk gerespondeerd. Aldaar immers heeft het hof onder meer overwogen dat [eiser] in de hoofdzaak gevoegde partij was en desgewenst zelf hoger beroep had kunnen instellen. [eiser] kon daarom naar het oordeel van het hof redelijkerwijs niet aan Avanti tegenwerpen dat deze geen hoger beroep heeft ingesteld.
3.38
Wat betreft de stellingen onder a. geldt het volgende. [eiser] heeft aangevoerd dat Avanti in de hoofdzaak niet behoorlijk verweer heeft gevoerd, onder meer omdat:
- zij heeft nagelaten een uitdrukkelijk beroep te doen op het verkrijgen van een erfpachtrecht door middel van verjaring,35.waarmee wordt gedoeld op een erfpachtrecht op een perceel van 277 m2 met meetbriefnummer 558/2001 dat onder meer de driehoek omvat;36.
- zij heeft nagelaten verweer te voeren tegen de hoogte van de vergoeding die door het gerecht voor de driehoek is bepaald en tegen de hoogte van de gebruiksvergoeding;37.
- zij het verjaringsverweer ter zake van de gebruiksvergoeding na verloop van vijf jaar niet althans onvoldoende heeft gevoerd.38.
3.39
Het hof heeft de aangehaalde vindplaatsen kennelijk gelezen in de sleutel van hetgeen [eiser] in het kader van zijn algemene grief heeft aangevoerd, meer in het bijzonder in memorie van grieven, randnummers 1.22.-1.24. Deze lezing is niet onbegrijpelijk, nu [eiser] in randnummer 1.31. van zijn memorie van grieven uitdrukkelijk heeft opgemerkt dat de specifieke grieven uitwerking zijn van de in de algemene grief geformuleerde verweren. In memorie van grieven, randnummers 1.22.-1.24., heeft [eiser] (onder verwijzing naar zijn eerder uiteengezette bezwaren tegen het eindvonnis in de hoofdzaak) betoogd dat een eventueel door Avanti ingesteld hoger beroep kansrijk zou zijn geweest en dat het niet instellen van hoger beroep door Avanti daardoor (ernstig) verwijtbaar handelen van Avanti oplevert.
3.40
Het hof heeft in rov. 2.5. geoordeeld dat [eiser] redelijkerwijs niet aan Avanti kan tegenwerpen dat zij geen hoger beroep heeft ingesteld. Dit betekent dat het hof – gelet op de hiervoor omschreven lezing van de memorie van grieven – niet meer hoefde in te gaan op het antwoord op de vraag hoe kansrijk een eventueel hoger beroep zou zijn geweest. De stellingen onder a., die althans indirect betrekking hebben op de toewijsbaarheid van de vorderingen in de hoofdzaak, konden om die reden verder onbesproken blijven.
3.41
De stellingen onder f. hebben betrekking op vorderingen op grond van onrechtmatige daad die Avanti volgens [eiser] jegens andere partijen kon instellen. Deze vermeende onrechtmatigedaadsvorderingen hangen samen met de niet geslaagde overdracht aan Avanti van het hiervoor in randnummer 3.38 genoemde erfpachtrecht. De bedoelde stellingen zijn door [eiser] voorgesteld in het kader van zijn grief 7 en mede ten grondslag gelegd aan grief 8 (memorie van grieven, randnummer 2.44.), met dien verstande dat het volgens [eiser] een aanvullende grond voor eigen schuld van Avanti oplevert als zij de vorderingen op grond van onrechtmatige daad niet instelt.39.
3.42
Het hof heeft ten aanzien van grief 7 in rov. 2.20. geoordeeld dat deze grief helemaal over de hoofdzaak gaat, zodat de daarin aangevoerde bezwaren tegen beslissingen van de rechter in de hoofdzaak niet van belang zijn voor de in de vrijwaringsprocedure aan de orde zijnde vraag of [eiser] de nadelige gevolgen van de veroordeling in de hoofdzaak dient te dragen. Voor zover de stellingen ook aan grief 8 ten grondslag waren gelegd, heeft het hof deze blijkens zijn verwijzing (in rov. 2.20.) naar rov. 2.4. en 2.5. kennelijk (mede in het licht van memorie van grieven, randnummers 1.22.-1.24.) uitgelegd als bezwaren tegen de uitspraak in de hoofdzaak die eraan zouden hebben bijgedragen dat een door Avanti in te stellen hoger beroep kansrijk zou zijn geweest, zodat het niet instellen van hoger beroep door Avanti (ernstig) verwijtbaar handelen van Avanti oplevert.
3.43
In deze lezing van de gedingstukken konden de stellingen onder f. verder onbesproken blijven om dezelfde reden als de stellingen onder a. Zie hiervoor in randnummer 3.40. Het oordeel van het hof is daarmee voldoende onderbouwd.
3.44
Dit alles betekent dat onderdeel 1 faalt.
Onderdeel 2
3.45
Onderdeel 2 is gericht tegen de verwerping van grief 6 in rov. 2.20. van het bestreden vonnis. Voor een goed begrip van deze grief en de bespreking van de klacht is het volgende procesverloop relevant.
3.46
Het gerecht heeft in zijn eindvonnis in de vrijwaringsprocedure de vorderingen van Avanti weergegeven. Avanti vorderde onder meer veroordeling van [eiser] tot betaling van “alle door Avanti in de hoofdzaak werkelijk gemaakte advocatenkosten van NAf 49.779,77, vermeerderd met de wettelijke rente vanaf 1 juli 2020 tot aan de dag der algehele voldoening”.
3.47
Het gerecht heeft de reikwijdte van de vrijwaring vastgesteld door de akte uit te leggen. Voor het gemak van de lezer citeer ik opnieuw (zoals hiervoor al in randnummer 2.8) de belangrijkste passages van wat het hof in dat kader heeft overwogen:
“4.8. De vrijwaring betreft volgens de akte iedere vordering die Seru Hulanda met betrekking tot het grensoverschrijdende perceel mocht blijken te hebben en alle door Avanti of [verweerder 2] in dat verband te maken kosten. (…)
(…)
4.10.
Voorts volgt uit de akte van vrijwaring dat partijen hebben afgesproken dat [eiser] Avanti ook zal vrijwaren voor alle door Avanti te maken kosten voor juridische bijstand in verband met de vordering van Seru Hulanda. Op grond van deze afspraak dient [eiser] de werkelijk gemaakte kosten aan Avanti te vergoeden. (…)”
3.48
Avanti heeft de door haar gevorderde vergoeding van de werkelijk gemaakte advocaatkosten onderbouwd door in producties 16 en 17 bij conclusie van repliek tevens akte houdende vermeerdering van eis in vrijwaring respectievelijk een rekeningoverzicht van [advocatenkantoor 1] en een factuuroverzicht en facturen van [advocatenkantoor 2] over te leggen.
3.49
Het gerecht heeft de gevorderde som die samenhing met het rekeningoverzicht van [advocatenkantoor 1] (productie 16) ten bedrage van NAf 6.747,59 afgewezen (rov. 4.10. en 4.13., in zoverre in cassatie niet aan de orde). Het bedrag gemoeid met de facturen van [advocatenkantoor 2] (in productie 17 bij conclusie van repliek tevens vermeerdering van eis in de vrijwaring) is door het gerecht wel volledig toegewezen ad NAf 43.032,18.
3.50
Op de in productie 17 overgelegde facturen van [advocatenkantoor 2] zijn bij de specificaties met declaratienummers 20171215 en 20171409 werkzaamheden vermeld die verband houden met het opstellen en indienen van de conclusie van eis in het vrijwaringsincident.
3.51
Met grief 6 is [eiser] tegen onder meer de hoogte van het toegewezen bedrag aan advocaatkosten opgekomen. Na andere – in cassatie niet langer relevante – bezwaren tegen dit bedrag, staat in randnummer 2.38. van de memorie van grieven:
“Voorts blijkt ook niet dat Avanti het bedrag van NAf 1.000,= waarin Seru Hulanda bij tussenvonnis van 21 augustus 2017 is veroordeeld heeft verdisconteerd.”
3.52
Het tussenvonnis waarnaar [eiser] in zijn memorie van grieven heeft verwezen is het vonnis van het gerecht in het incident tot oproeping in vrijwaring, waarbij Seru Hulanda als de in het ongelijk gestelde partij is veroordeeld in de proceskosten van het incident aan de zijde van Avanti begroot op NAf 1.000.40.
3.53
Het hof heeft grief 6 verworpen en daartoe, ook hier herhaal ik het citaat voor het gemak van de lezer (hiervoor al in randnummer 2.19), in de eerste volzinnen van rov. 2.20. overwogen:
“2.20. De grieven 6-9 falen. Wat betreft grief 6: het Hof verenigt zich [met de, A-G] wijze waarop het Gerecht door middel van uitleg de reikwijdte van de akte tot vrijwaring heeft vastgesteld. Grief 6 stelt verder bezwaren tegen beslissingen van de rechter in de hoofdzaak aan de orde, die echter niet van belang zijn voor de in deze vrijwaringsprocedure aan de orde zijnde vraag of [eiser] de nadelige gevolgen van de veroordeling in de hoofdzaak dient te dragen. (…)”
3.54
Onderdeel 2 klaagt in procesinleiding, randnummer 36. dat dit oordeel van het hof onvoldoende en/of onbegrijpelijk is gemotiveerd. Uit het feit dat een ander (Seru Hulanda) is veroordeeld deze kosten te dragen, volgt volgens het middel dat deze kosten niet langer zijn aan te merken als werkelijk door Avanti gemaakte kosten. Bij gegrondbevinding van dit betoog zou een bedrag van NAf 1.000 in mindering moeten worden gebracht op de werkelijk gemaakte kosten van Avanti waartoe [eiser] in eerste aanleg (en door het hof) is veroordeeld.
3.55
Het onderdeel voegt daaraan in procesinleiding, randnummer 37., toe dat indien het hof de door [eiser] in het kader van zijn grief 6 aangevoerde stelling heeft verworpen, dit oordeel rechtens onjuist en zonder nadere toelichting, die ontbreekt, onbegrijpelijk is. In dat geval heeft het hof volgens het onderdeel miskend dat onder werkelijk gemaakte kosten van Avanti geen bedrag kan worden begrepen waarvoor Avanti in de hoofdzaak middels een daartoe strekkende proceskostenveroordeling reeds vergoed is.
3.56
Het onderdeel slaagt. De door het middel aangehaalde vindplaats in de memorie van grieven (hiervoor in randnummer 3.51 geciteerd) is in het licht van de (in cassatie niet bestreden) uitleg van de vrijwaringsovereenkomst en van de door Avanti gegeven onderbouwing van haar vordering in redelijkheid niet anders te begrijpen dan als essentiële stelling, waarop het hof had behoren te responderen. In de bestreden overweging van het hof (hiervoor geciteerd in randnummer 3.53) is geen respons op dit betoog van [eiser] te ontwaren. In zoverre is het oordeel van het hof onbegrijpelijk.
3.57
Het door Avanti c.s. gevoerde verweer (schriftelijke toelichting, randnummers 5.2-5.5) komt erop neer dat [eiser] niet was veroordeeld tot betaling van de kosten die Avanti in het vrijwaringsincident heeft gemaakt, maar slechts van de kosten die Avanti in de hoofdzaak daadwerkelijk heeft gemaakt. Dit verweer strookt echter niet met Avanti’s onderbouwing van de gevorderde som aan daadwerkelijk gemaakte proceskosten in productie 17 bij conclusie van repliek tevens vermeerdering van eis in de vrijwaring (zie daarover ook hiervoor, randnummer 3.50) en moet daarom worden gepasseerd.
3.58
Uit de gedingstukken blijkt dat Avanti niet op dit betoog van [eiser] heeft gereageerd. Zij heeft bijvoorbeeld niet aangegeven dat het genoemde bedrag daadwerkelijk is verdisconteerd.
3.59
In dat licht komt mij voor dat Uw Raad de zaak op de voet van art. 420-421 Rv zelf kan afdoen, door de door het hof in rov. 3. van het bestreden vonnis bevestigde veroordeling van [eiser] tot betaling aan Avanti van NAf 43.032,18 (in rov. 5.4. van het vrijwaringsvonnis in eerste aanleg41.) te verminderen met NAf 1.000, dus dat [eiser] wordt veroordeeld tot betaling aan Avanti van NAf 42.032,18 in plaats van NAf 43.032,18, vermeerderd met de wettelijke rente vanaf 1 juli 2020 tot aan de dag der algehele voldoening.
Slotsom
3.60
Het voorgaande leidt tot de slotsom dat onderdeel 1 faalt en onderdeel 2 slaagt.
4. Conclusie
De conclusie strekt tot vernietiging en tot afdoening op de wijze als in randnummer 3.59 hiervoor vermeld.
De Procureur-Generaal bij de
Hoge Raad der Nederlanden
A-G
Voetnoten
Voetnoten Conclusie 11‑10‑2024
Zie GHvJ 29 augustus 2023, ECLI:NL:OGHACMB:2023:153, rov. 2.1. Het hof heeft de feitenvaststelling van het gerecht overgenomen (GEA Curaçao 13 september 2021, ECLI:NL:OGEAC:2021:171, rov. 2.1.-2.7.), hier weergegeven met enige redactionele aanpassingen en met weglating van rov. 2.6.-2.7. (de inhoud van die rechtsoverwegingen komt aan de orde in mijn bespreking van het procesverloop (hierna randnummers 2.1-2.3). De in hoger beroep tegen de feitenvaststelling in eerste aanleg gerichte grieven 1 en 2 zijn verworpen (GHvJ 29 augustus 2023, ECLI:NL:OGHACMB:2023:153, rov. 2.6.). Tegen deze verwerping zijn in cassatie geen klachten gericht.
De afbeelding is overgenomen uit GEA Curaçao 23 september 2019, ECLI:NL:OGEAC:2019:375, rov. 2.2.
In de stukken ook aangeduid als ‘oprichtersrechten’. Avanti is een Stichting Particulier Fonds (hierna: ‘SPF’). Zie over de rechtsfiguur SPF een recente conclusie van A-G Koopman in een fiscale zaak (ECLI:NL:PHR:2024:828, randnummers 6.17 e.v.) en verder ook mijn conclusie (ECLI:NL:PHR:2016:521) voor HR 7 oktober 2016, ECLI:NL:HR:2016:2285, NJ 2017/124 m.nt. P. van Schilfgaarde, JOR 2016/325 m.nt. B.M. Katan, Ondernemingsrecht 2017/7 m.nt. S.M. Bartman en JIN 2016/225 m.nt. G.J. de Bock (Resort of the World/Maple Leaf), randnummers 4.9-4.14, en meer in het bijzonder over oprichtersrechten randnummer 3.4 van de conclusie van A-G Drijber (ECLI:NL:PHR:2019:267) voor HR 7 juni 2019, ECLI:NL:HR:2019:851, RvdW 2019/691 (art. 81 RO). Het hof heeft het over ‘oprichtingsrechten’, maar bedoelt daarmee kennelijk hetzelfde. Zie GHvJ 29 augustus 2023, ECLI:NL:OGHACMB:2023:153, rov. 2.13.
In hoger beroep heeft [eiser] tegen deze vaststelling een grief (grief 2) gericht met de strekking dat de vrijwaring niet strekte ten gunste van [verweerder 2] , maar ten gunste van [verweerder 3] Het hof heeft deze grief verworpen. Zie GHvJ 29 augustus 2023, ECLI:NL:OGHACMB:2023:153, rov. 2.6. Desondanks lijkt het hof in rov. 2.15. tot uitgangspunt te hebben genomen dat de vrijwaring is opgemaakt ten gunste van [verweerder 3] Tegen rov. 2.6. en 2.15. zijn in cassatie geen klachten gericht.
De akte is gedateerd op 18 februari 2009. Zie productie 4c bij de door Avanti ingediende Incidentele vordering tot oproeping in vrijwaring van 24 april 2017.
Zie GEA Curaçao 13 september 2021, ECLI:NL:OGEAC:2021:171, rov. 2.6.
Zie GEA Curaçao 12 maart 2018, zaaknummer: CUR 2017 01441 (A.R. 80905/2016) (niet gepubliceerd).
GEA Curaçao 21 augustus 2017, registratienummer: A.R. 80905/2016 (niet gepubliceerd).
GEA Curaçao 30 maart 2020, ECLI:NL:OGEAC:2020:72. Zie ook het eerdere tussenvonnis, GEA Curaçao 23 september 2019, ECLI:NL:OGEAC:2019:375.
Vergelijk voor deze alinea GEA Curaçao 13 september 2021, ECLI:NL:OGEAC:2021:171, rov. 2.7., door het hof overgenomen in GHvJ 29 augustus 2023, ECLI:NL:OGHACMB:2023:153, rov. 2.1., in cassatie niet bestreden.
GEA Curaçao 31 mei 2021, ECLI:NL:OGEAC:2021:170.
GEA Curaçao 13 september 2021, ECLI:NL:OGEAC:2021:171.
Vermoedelijk is dit een verschrijving van het gerecht. Avanti heeft betaling van NAf 112.655,74 gevorderd. Zie GEA Curaçao 13 september 2021, ECLI:NL:OGEAC:2021:171, rov. 3.1. onder a. Dit bedrag komt overeen met wat zij heeft betaald. Zie GEA Curaçao 13 september 2021, ECLI:NL:OGEAC:2021:171, rov. 2.7. Het hof heeft deze verschrijving overgenomen in het dictum (rov. 3.) van zijn vonnis van 29 augustus 2023, ECLI:NL:OGHACMB:2023:153.
Dit bedrag hing samen met de gevorderde betaling van door Avanti in de hoofdzaak daadwerkelijk gemaakte proceskosten. Zie daarover ook de bespreking van onderdeel 2 in randnummers 3.45 e.v. hierna.
Bedoeld zal zijn: de grensoverschrijdende bebouwing.
Het gerecht heeft hier kennelijk het betoog van [eiser] gevolgd, die bij pleidooi in de vrijwaringszaak, randnummer 15., heeft aangevoerd: “ betwist dat hij zich met de akte tot vrijwaring sterk heeft gemaakt voor de kosten met betrekking tot de bijstand die [advocatenkantoor 1] aan Avanti heeft verleend tijdens het beproeven van een minnelijke schikking met Seru Hulanda Real Esate N.V., zodat Avanti het perceel kon kopen en daarna doorverkopen aan [A] N.V.” Met ‘het perceel’ is hier waarschijnlijk gedoeld op de driehoek. Zie ook [eiser] dupliek in de vrijwaringszaak, randnummer 23.
GHvJ 29 augustus 2023, ECLI:NL:OGHACMB:2023:153, rov. 1.5.
GHvJ 29 augustus 2023, ECLI:NL:OGHACMB:2023:153. [eiseres 4] (in eerste aanleg niet-ontvankelijk verklaard; zij is door ontbinding in 2019 opgehouden te bestaan) is door het hof in het hoofd van zijn vonnis vermeld als niet verschenen partij. In de procesinleiding, randnummers 2. en 4., wordt [eiseres 4] aangemerkt als een van de geïntimeerden in principaal hoger beroep en als een van de appellanten in incidenteel hoger beroep. [eiseres 4] is in cassatie (als ontbonden naamloze vennootschap gevestigd te Curaçao) wel weer verschenen.
Dit is waarschijnlijk een verschrijving. Zie mijn opmerkingen hierover in randnummer 3.15 hierna.
Het gaat om het vonnis over het incidentele verzoek tot oproeping in vrijwaring van [eiser] , GEA Curaçao 21 augustus 2017, registratienummer: A.R. 80905/2016 (niet gepubliceerd).
R.P.J.L. Tjittes, Commercieel contractenrecht. Deel I: totstandkoming en inhoud, Den Haag: Boom juridisch 2022, p. 548.
Vergelijk R.P.J.L. Tjittes, Commercieel contractenrecht. Deel I: totstandkoming en inhoud, Den Haag: Boom juridisch 2022, p. 549, met verdere verwijzingen.
Zo bijvoorbeeld C. Visser, ‘Garanties en vrijwaringen: handvatten voor het aanscherpen van het onderscheid’, V&O 2011, p. 93, M.J.E. van den Bergh en P.P.J. Jongen, ‘Garanties of vrijwaringen; that’s the question’, Contracteren 2011, p. 51, E. Kraaijveld en J.L.M.W. Louwers, ‘Garantie bij overnames’, in M.M. van Rossum en P.H.L.M. Kuypers (red.), Garanties in de rechtspraktijk, Deventer: Wolters Kluwer 2015, p. 243 (par. 10.3.2), R.P.J.L. Tjittes, Commercieel contractenrecht. Deel I: totstandkoming en inhoud, Den Haag: Boom juridisch 2022, p. 549 en M.P.P. van Buuren & Y. van Benten, ‘De overnameovereenkomst’, in M.P.P. van Buuren & H. Koster (red.), Bedrijfsovername, Deventer: Wolters Kluwer 2023, p. 217.
Zie bijvoorbeeld J. Leedekerken, ‘Nakoming van een vrijwaring in een overnameovereenkomst – show me the money?’, Contracteren 2014/4, par. 2, E. Kraaijveld en J.L.M.W. Louwers, ‘Garantie bij overnames’, in M.M. van Rossum en P.H.L.M. Kuypers (red.), Garanties in de rechtspraktijk, Deventer: Wolters Kluwer 2015, p. 243 (par. 10.3.2), R.P.J.L. Tjittes, Commercieel contractenrecht. Deel I: totstandkoming en inhoud, Den Haag: Boom juridisch 2022, p. 549 en M.P.P. van Buuren & Y. van Benten, ‘De overnameovereenkomst’, in M.P.P. van Buuren & H. Koster (red.), Bedrijfsovername, Deventer: Wolters Kluwer 2023, p. 217.
M.P.P. van Buuren & Y. van Benten, ‘De overnameovereenkomst’, in M.P.P. van Buuren & H. Koster (red.), Bedrijfsovername, Deventer: Wolters Kluwer 2023, p. 217 verwoorden het als volgt: “Is een garantie onjuist en is er deswege sprake van een ‘inbreuk’ op een garantie, dan is er direct sprake van een tekortkoming in de nakoming door de verkoper, die kan worden toegerekend. De koper kan in dat geval de schade verhalen op de verkoper. De vordering is schadevergoeding op grond van een toerekenbare tekortkoming in de nakoming (wanprestatie). Bij een vrijwaring is dit anders. Er is immers niet zoiets als een ‘inbreuk’, aangezien partijen het risico dat zich verwezenlijkt reeds hadden voorzien. Het gaat juist om de nakoming van de afgegeven vrijwaring.”
Deze term wordt gebruikt door R.P.J.L. Tjittes, Commercieel contractenrecht. Deel I: totstandkoming en inhoud, Den Haag: Boom juridisch 2022, p. 550.
Landsverordening, houdende vaststelling van de tekst van de titels 6.1 en 6.2 van het Burgerlijk Wetboek, Staten van de Nederlandse Antillen, zitting 1998-1999, 2219, nr. 3 (MvT), p. 16-17 (PB 2000/115) (ook te kennen uit M.F. Murray, Parlementaire geschiedenis van het Curaçaose Burgerlijk Wetboek. Deel 2. Tekst en toelichting op het Burgerlijk Wetboek, Den Haag: Boom juridisch 2016, p. 1427-1428), met oorspronkelijke onderstreping: “De regels van de afdeling zijn van toepassing op de gevallen waarin de wet zelf verplicht tot het vergoeden van schade. (…) Buiten de (rechtstreekse) toepasselijkheid van de afdeling vallen de schadevergoedingsverplichtingen die, onverschillig of zij regeling in de wet vinden, hun grondslag hebben in een, op die vergoeding gerichte, overeenkomst, zoals de overeenkomst van schadeverzekering en het boetebeding.” Ik merk op dat de regeling in het Curaçaose BW in hoge mate overeenstemt met de regeling in het Nederlandse BW. Naar Nederlands recht geldt op dit punt hetzelfde. Zie HR 19 november 1999, ECLI:NL:HR:1999:AA1063, NJ 2000/17 en JOR 2000/24 m.nt. N.E.D. Faber, rov. 3.5 en verder onder meer Asser Verbintenissenrecht/C.H. Sieburgh, Deel 6-II. De verbintenis in het algemeen, tweede gedeelte, Deventer: Wolters Kluwer 2021, nr. 4 en T. Hartlief e.a., Verbintenissen uit de wet en Schadevergoeding (SBR 5), Deventer: Wolters Kluwer 2024, nr. 198 (T. Hartlief), beide met verdere verwijzingen.
Zie over deze schadebeperkingsplicht in het algemeen Asser Verbintenissenrecht/C.H. Sieburgh, Deel 6-II. De verbintenis in het algemeen, tweede gedeelte, Deventer: Wolters Kluwer 2021, nrs. 125 e.v. en T. Hartlief e.a., Verbintenissen uit de wet en Schadevergoeding (SBR 5), Deventer: Wolters Kluwer 2024, nr. 235 (T. Hartlief).
Vergelijk bijvoorbeeld M.J.E. van den Bergh en P.P.J. Jongen, ‘Garanties of vrijwaringen; that’s the question’, Contracteren 2011, p. 53, C.J.J.C. van Nispen, Sancties in het vermogensrecht (Mon. BW A11), Deventer: Wolters Kluwer 2018, nr. 16 en J.L.R.A. Huydecoper, Reële executie (Mon. BW A13), Deventer: Wolters Kluwer 2020, nr. 84. D. Haas, De grenzen van het recht op nakoming, diss., Deventer: Kluwer 2009, p. 304-318 en vooral p. 314, verzet zich in het kader van commerciële koopcontracten geïnspireerd door common law en rechtseconomie tegen het volgens de heersende leer bestaande verschil in rechtsgevolgen al naar gelang de koper bij uitblijven van (volledige) levering kiest voor nakoming (geen schadebeperkingsplicht) of voor schadevergoeding (wel schadebeperkingsplicht). Haas maakt zich er sterk voor de koper ook ingeval van een keuze voor nakoming te prikkelen tot schadebeperking in de vorm van het doen van een vervangingsaankoop (het verrichten van een dekkingstransactie met een derde). In dat verband bepleit hij, met een schuin oog kijkend naar de Principles of European Contract Law en de Unidroit Principles een regeling van commerciële koopcontracten die erop neerkomt dat de koper weliswaar zijn recht op nakoming behoudt, maar het nadeel dient te vergoeden dat de verkoper lijdt doordat de koper geen dekkingstransactie heeft verricht. Dit komt (volgens Haas) neer op betaling door de koper aan de verkoper van het bedrag dat bij een veroordeling van de verkoper tot schadevergoeding in mindering zou zijn gebracht op de door de verkoper te betalen som wegens schending van de schadebeperkingsverplichting door de koper. In de kern wordt hier niet de route van art. 6:101 BW (beperking van de omvang van de verschuldigde schadevergoeding) gevolgd, maar is sprake van een beperking van (de normale gevolgen van het uitoefenen van) het recht op nakoming die in financiële zin op (ongeveer) hetzelfde neerkomt. Volgens C.A.N.M.Y. Cauffman, ‘Hoe ver reikt het recht op nakoming in het contractenrecht?’ (bespreking van D. Haas, De grenzen van het recht op nakoming, diss., Deventer: Kluwer 2009), RM Themis 2010, p. 100, is de door Haas aangedragen oplossing verdedigbaar, zij het dat er slechts een schadebeperkingsplicht van de koper bestaat als het naar maatstaven van redelijkheid en billijkheid onaanvaardbaar zou zijn om nakoming te vorderen. Anders J. Leedekerken, ‘Nakoming van een vrijwaring in een overnameovereenkomst – show me the money?’, Contracteren 2014/4, par. 2, volgens wie art. 6:101 BW van toepassing is op een verbintenis tot vergoeding uit hoofde van een vrijwaring, ook al vloeit deze verbintenis (ook volgens Leedekerken) voort uit overeenkomst.
Zie procesinleiding, randnummer 17, en de schriftelijke toelichting van Avanti c.s., randnummer 1.2, tweede streepje.
Zie procesinleiding, randnummer 17., en de schriftelijke toelichting van Avanti c.s., randnummer 1.2, derde streepje.
Vergelijk het bestreden vonnis, rov. 2.19.: “(…) Artikel 7:23 BW kan wellicht van belang zijn voor de vraag of [verweerders] als kopers nog jegens [eiser] als verkoper een beroep kunnen doen op de akte tot vrijwaring, opgevat als conformiteitsgarantie. (…)”
Dit is vermoedelijk een verschrijving. Zie mijn opmerkingen hierover in randnummer 3.15 hiervoor.
Het middel verwijst naar memorie van grieven, randnummer 2.47.
Zie memorie van grieven, randnummers 1.2.-1.4. en 1.19.
Het middel verwijst naar memorie van grieven, randnummer 2.48.
Het middel verwijst naar memorie van grieven, randnummer 2.48.
Het middel verwijst naar memorie van grieven, randnummer 2.44. en appelpleitnota [eiser] , randnummer 7.1.
GEA 21 augustus 2017, registratienummer: A.R. 80905/2016 (niet gepubliceerd), rov. 3.3. en onder 4.
GEA Curaçao 13 september 2021, ECLI:NL:OGEAC:2021:171.